
Richiesta informazioni sull'immobile
Contratto Vendita
Rif Terreno edificabile
Prezzo € 700.000
Provincia Milano
Comune Castano Primo
Superficie
6170 mq
Vendiamo lotto di 6170 mq a Castano Primo. IDEALE PER INVESTITORI E COSTRUTTORI.
Rif: Terreno edificabile | 6170 Mq |
Rif: Terreno edificabile - RIF: terreno edificabile
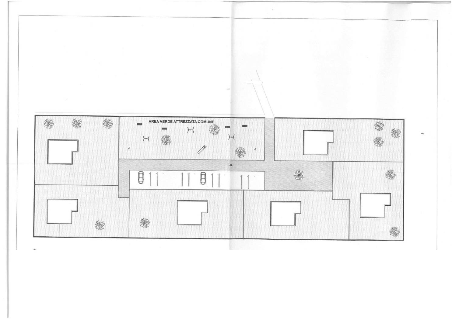
Reale Immobiliare vende un'area di mq.6170,00, collocata in Castano Primo (MI). L'indice di edificabilità è il seguente: 3.700,00 metri cubi.
Il terreno si presta per la costruzione di 6 ville di pregio con caratteristiche costruttive moderne ed energeticamente all'avanguardia in termini di risparmio e impatto ecologico. Ciascuna villa, secondo un primo progetto architettonico, potrebbe avere una superficie di 200mq suddivisi su due livelli. In questo caso, i restanti 2170mq verrebbero destinati per aree a parcheggio esterne e area attrezzata a verde con eventuale parco giochi.
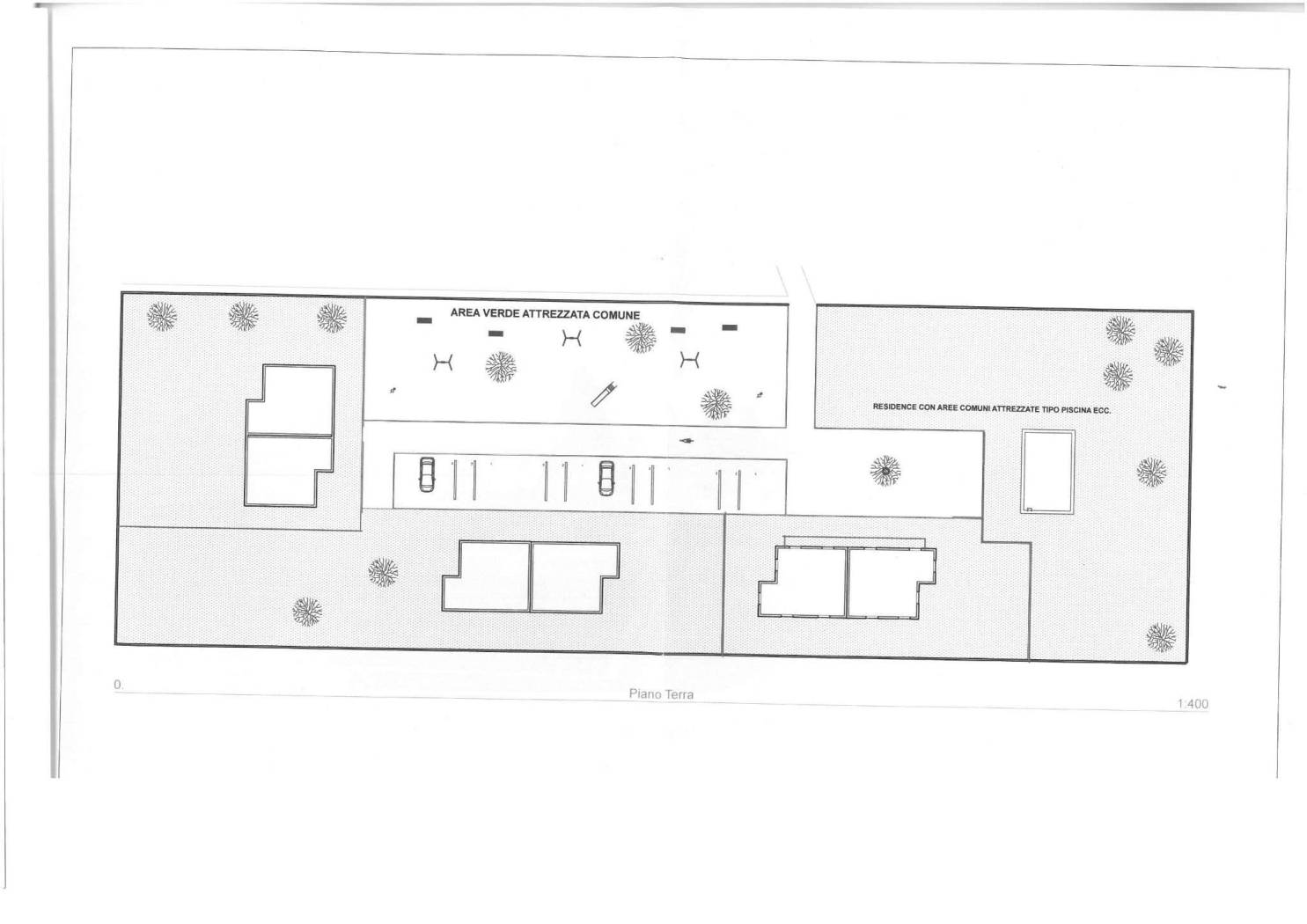
In alternativa, un secondo progetto suggerisce la realizzazione di 3 palazzine disposte su due livelli per la creazione di un'area residenziale di lusso con un grande parco ed una splendida piscina in comune a tutti i residenti. Si potrebbero realizzare 12 appartamenti di circa 100mq cadauno o, in alternativa 24 appartamenti da 50mq l'uno.
Prezzo di vendita: Eu. 700.000.
Per informazioni e appuntamenti contattare lo studio Reale Immobiliare di Magenta al numero 0284140759 negli orari 9-12 e 15-19 dal lunedì al venerdì. Gli appuntamenti di visita vanno dal lunedì al sabato.
Reale Immobiliare vende un'area di mq.6170,00, collocata in Castano Primo (MI). L'indice di edificabilità è il seguente: 3.700,00 metri cubi.
Il terreno si presta per la costruzione di 6 ville di pregio con caratteristiche costruttive moderne ed energeticamente all'avanguardia in termini di risparmio e impatto ecologico. Ciascuna villa, secondo un primo progetto architettonico, potrebbe avere una superficie di 200mq suddivisi su due livelli. In questo caso, i restanti 2170mq verrebbero destinati per aree a parcheggio esterne e area attrezzata a verde con eventuale parco giochi.
In alternativa, un secondo progetto suggerisce la realizzazione di 3 palazzine disposte su due livelli per la creazione di un'area residenziale di lusso con un grande parco ed una splendida piscina in comune a tutti i residenti. Si potrebbero realizzare 12 appartamenti di circa 100mq cadauno o, in alternativa 24 appartamenti da 50mq l'uno.
Prezzo di vendita: Eu. 700.000.
Per informazioni e appuntamenti contattare lo studio Reale Immobiliare di Magenta al numero 0284140759 negli orari 9-12 e 15-19 dal lunedì al venerdì. Gli appuntamenti di visita vanno dal lunedì al sabato.











